Живи в настоящем!
Вологодская обл., Череповецкий р-н, д. Кальнинское
s.dom35@yandex.ru

Северный-100

Северный-100
Площадь
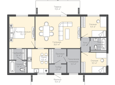
137м
Размер
13,5 × 7,85 м
Количество этажей
1
Количество спален
3
Возможные технологии
CLT технология
каркасно-панельная технология
Стоимость
9 392 938 ₽
Оставить заявку
Планировка
Комплектации

Базовая

Стоимость:

6 580 000 руб.

52 640 руб./м2

Наружные стеновые панели:

  • CLT панель 100 мм (внутренняя поверхность с имитацией обшивки).
  • Доска на вторую верхнюю обвязку.
  • Перегородки внутренние:

  • CLT панель 100 мм (обе поверхности с имитацией обшивки).
  • Каркас из доски 45х95 мм‚ без заполнения.
  • Каркас из доски 45х145 мм‚ без заполнени.
  • Цокольные панели

  • CLT панель 100 мм.
  • Террасные панели:

  • каркас из доски 45х195 мм‚ обработана антисептиком.
  • Стропильная система:

  • Комплект стропильных ферм на металлозубчатых пластинах.
  • Комплект фронтонных ферм и фронтонных лестниц.
  • Столбы и балки:

  • Комплект столбов‚ балок и досок.
  • Обвязочный брус антисептированный.
  • Комплект стартовых балок и досок.
  • Тёплый контур

    Стоимость:

    9 392 938 руб.

    68 346 руб./м2

    Наружные стеновые панели:

  • CLT панель 100 мм с перекрестный утеплением 100 мм и обшивкой окрашенной скандинавской доской.
  • Комплект крепежных и монтажных элементов.
  • Перегородки внутренние:

  • CLT панель 100 мм.
  • Утепленный каркас 95 мм‚ обшитый гипсокартоном.
  • Цокольные панели

  • CLT панель 100 мм.
  • Террасные панели:

  • Каркасные панели 195 мм‚ обработанные антисептиком.
  • Стропильная система:

  • Комплект стропильных ферм на МЗП‚ стропил и фронтонных лестниц.
  • Комплект обрешетки и контр. бруска.
  • Подшивка свесов окрашенной скандинавской доской и подъемов ферм.
  • Столбы и балки:

  • Комплект столбов‚ балок и досок.
  • Обвязочный брус антисептированный.
  • Фундамент:

  • Свайный фундамент ЖБ 150х150х4000.
  • Окна и двери:

  • Комплект окон Ivaper 70 мм с покраской.
  • Комплект входных дверей Ivaper 70 мм с покраской.
  • Комплект кровли:

  • Металлочерепица Монтеррей.
  • набор планок и доборных элементов.
  • система снегозадержателей и водосточная система ПВХ.
  • Литой поликарбонат 6 мм для кровли террасы.
  • Комплект материалов для обустройства чердачного перекрытия‚ крыши и свесов‚ террасы.
  • Работы по монтажу и сборке домокомплекта

    Под ключ

    Стоимость:

    11 489 025 руб.

    83 617 руб./м2
  • Комплектация «Тёплый контур».
  • Устройство системы водоснабжения и канализации (внутренние сети).
  • Устройство системы отопления (Устройство котла‚ бойлера и др. котельного оборудования).
  • Устройство «теплого пола».
  • Устройство системы электроснабжения.
  • Устройство системы вентиляции.
  • Получить коммерческое предложение
    Заполните форму, и менеджер свяжется с вами для обсуждения деталей