Написать нам в WhatsApp
Живи в настоящем!
Вологодская обл., Череповецкий р-н, д. Кальнинское
s.dom35@yandex.ru

Д-192

Д-192
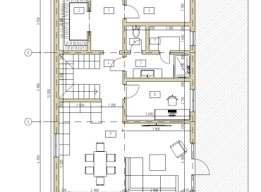
Площадь
237м
Размер
8 × 12 м
Количество этажей
2
Количество спален
4
Возможные технологии
каркасно-панельная технология
Стоимость
от  2 660 000 ₽
Оставить заявку
Планировка

Комплектация

Стоимость, руб. Цена, руб./м2

Базовая

2 660 000 *11 224 *

Теплый контур

6 681 600 *28 193 *

Под ключ

12 384 000 *52 253 *

При устройстве свайного фундамента:

  • Панели перекрытия: каркас из доски 45х195‚ ветрозащитная пленка‚ 200 мм утепление‚ пароизоляционная пленка‚ OSB;
  • Панели террасные: каркас из доски 45х195‚ террасная доска 45х145.

При устройстве фундаментной плиты:

  • Комплект подкладочной доски с гидроизоляцией‚ террасная доска.

Несущие каркасные панели: каркас из доски 45х195‚ ветрозащитный гипсокартон GTS-9‚ брусок вент. зазора‚ обрешетка‚ пароизоляционная пленка‚ брусок под отделку.

Внутренняя и наружная отделка из окрашенной в заводских условиях доски.

Перегородки внутренние каркасные: каркас из доски 95х45‚ брусок под отделку.

Внутренняя отделка из крашенной в заводских условиях доски‚ влагостойкий гипсокартон в санузлах

Комплект стропильных ферм с обрешеткой.

Металлочерепица‚ гидроизоляционная пленка‚  200 мм утепление‚ пароизоляционная пленка‚ обрешетка.

Комплект деревянных клееных столбов и балок.

Комплект крепежных и монтажных элементов.

Комплект окон‚ двойные энергоэффективные стеклопакеты.

Устройство инженерных систем и коммуникаций.

Чистовая отделка.

Получить коммерческое предложение
Заполните форму, и менеджер свяжется с вами для обсуждения деталей