Написать нам в WhatsApp
Живи в настоящем!
Вологодская обл., Череповецкий р-н, д. Кальнинское
s.dom35@yandex.ru

Б-105

Б-105
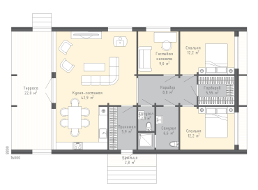
Площадь
146м
Размер
9 × 17 м
Количество этажей
1
Количество спален
3
Возможные технологии
каркасно-панельная технология
CLT технология
Стоимость
4 629 000 ₽
Оставить заявку
Планировка
Комплектации

Базовая

Стоимость:

2 315 000 руб.

15 878 руб./м2

Наружные стеновые панели:

  • Каркас из доски 45х195‚ утеплитель 200мм‚ ветрозащитный гипсокартон GTS-9‚ брусок вент. зазора‚ обрешетка под наружную отделку‚ пароизоляционная пленка 200 мкм‚ брусок под внутреннюю отделку.
  • Перегородки внутренние каркасные:

  • Каркас из доски 45х95/145 без заполнения.
  • Террасные панели

  • Каркас из доски 45х195 мм‚ обработана антисептиком.
  • Стропильная система:

  • Комплект стропильных ферм на МЗП.
  • Столбы и балки:

  • Комплект деревянных столбов и балок.
  • Тёплый контур

    Стоимость:

    4 629 000 руб.

    31 749 руб./м2

    Наружные стеновые панели:

  • Каркас из доски 45х195‚ утеплитель 200мм‚ ветрозащитный гипсокартон GTS-9‚ брусок вент. зазора‚ обрешетка под наружную отделку‚ пароизоляционная пленка 200 мкм‚ брусок под внутреннюю отделку.
  • Перегородки внутренние каркасные:

  • Каркас из доски 45х95/145
  • Утепление каркаса 95 мм‚ гипсокартон.
  • Цокольные панели:

  • Каркас из доски 195х45 мм.
  • Террасные панели:

  • Каркасные панели 195 мм‚ обработанные антисептиком.
  • Стропильная система:

  • Комплект стропильных ферм на МЗП‚ стропил и фронтонных лестниц.
  • Комплект обрешетки и контр. бруска.
  • Подшивка свесов окрашенной скандинавской доской и подъемов ферм.
  • Столбы и балки:

  • Комплект столбов‚ балок и досок.
  • Фундамент:

  • Свайный фундамент ЖБ 150х150х3000.
  • Обвязочный брус антисептированный.
  • Окна и двери:

  • Комплект окон Ivaper 70 мм с покраской.
  • Комплект входных дверей Ivaper 70 мм с покраской.
  • Комплект кровли:

  • Металлочерепица Монтеррей.
  • Набор планок и доборных элементов.
  • Система снегозадержателей и водосточная система ПВХ Docke.
  • Литой поликарбонат 6 мм для кровли террасы.
  • Комплект материалов для обустройства чердачного перекрытия‚ крыши и свесов‚ террасы.
  • Работы по монтажу и сборке домокомплекта

    Под ключ

    Стоимость:

    8 416 000 руб.

    57 723 руб./м2
  • Комплектация «Тёплый контур».
  • Устройство системы водоснабжения и канализации (внутренние сети).
  • Устройство системы отопления (Устройство котла‚ бойлера и др. котельного оборудования).
  • Устройство «теплого пола».
  • Устройство системы электроснабжения.
  • Устройство системы вентиляции.
  • Получить коммерческое предложение
    Заполните форму, и менеджер свяжется с вами для обсуждения деталей