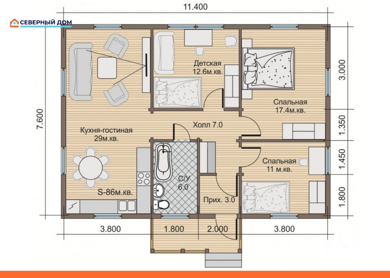
Домокомплект Ш-86 Домокомплект Ш-86 Хочу такой же Планировка Предыдущий проект Следующий проект Получить коммерческое предложение Заполните форму, и менеджер свяжется с вами для обсуждения деталей Ваше имя Номер телефона Описание задачи