Написать нам в WhatsApp
Живи в настоящем!
Вологодская обл., Череповецкий р-н, д. Кальнинское
s.dom35@yandex.ru

Барнхаус по проекту "Б-105"

20.10.2024
Барнхаус по проекту "Б-105"
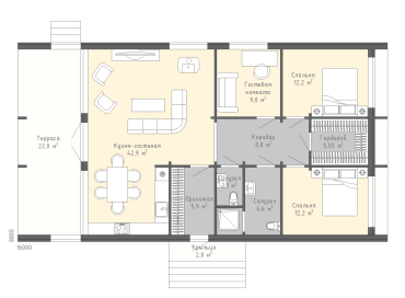
Площадь
149 м
Планировка
Получить коммерческое предложение
Заполните форму, и менеджер свяжется с вами для обсуждения деталей